Главная
»
Индикатор для регулировки клапанов ваз купить
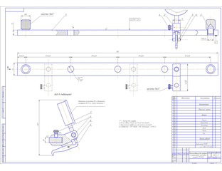
Приспособление для регулировки клапанов ВАЗ-2103