Скобяные изделия: что это и для чего они нужны|...
Замки для входных дверей врезные: Замки дверные...
Скобяные изделия для дверей - 60 фото
Скобяные изделия для дверей купить в Москве: це...
Скобяные изделия для блоков входных дверей в по...
Класс защиты входных дверей
Скобяные изделия - что это такое? Виды и характ...
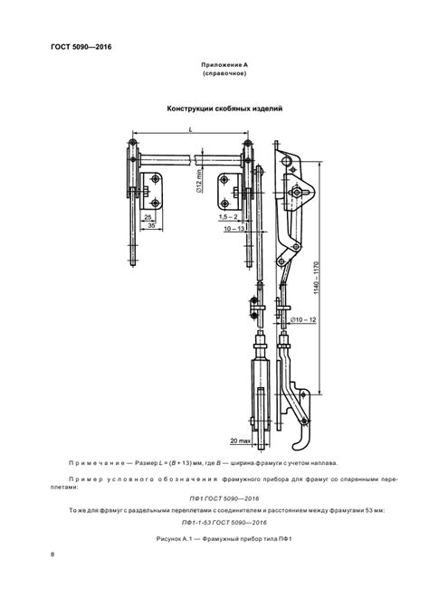
Скачать ГОСТ 5090-2016 Изделия скобяные для дер...
Комплект для входных металлических/деревянных д...
Комплект скобяных изделий для блоков входных дв...
Скобяные изделия купить в интернет-магазине ЦСК
Производство входных дверей
Купить скобяные изделия для дверей и окон по ни...
комплект скобяных изделий для блоков двупольных...
Декоративные панели для входных дверей
Замочно-скобяные изделия для дверей — Хозяйстве...