Проект реконструкции линии электропередачи ВЛ-0...
Скачать Типовой Проект Вли 10 Кв - conjugas
Типовые проектные решения для ВЛИ 0,4 кВ
Анкерные и угловые опоры ВЛИ 0,4 кВ
Вл 0 4 кв: ВЛ 0,4кВ Типовой проект ВЛ ВЛИ — gro...
Как отличить воздушные линии электропередач (ВЛ)
ЭСН Строительство ВЛИ-0,4кВ - Чертежи.РУ
Пример расчета ВЛИ-0,4кВ (обзор программ) - You...
ВЛ -10 кВ и ВЛИ-0.4 кВ
Проектирование ВЛЗ-10 кВ и ВЛИ-0,4 кВ
Типовой проект ВЛ-0,4 кВ 11.0014 - Чертежи, 3D ...
Купить Низковольтное 0.4кВ и высоковольтное 6-3...
Проект ВЛИ 0.4 кВ
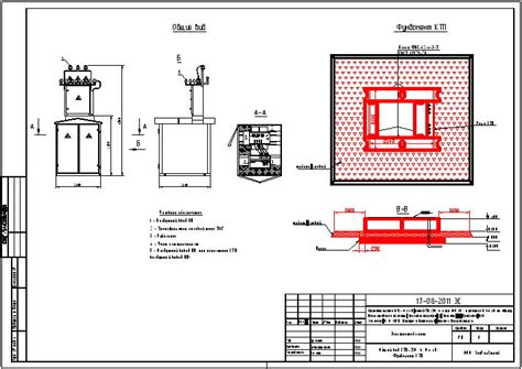
Реконструкция ВЛИ-0,4 кВ (2011)
Проект Электроснабжения ВЛИ 0.4 кВ - Чертежи, 3...
Устройство заземления ВЛИ-0,4 кВ УЗ ВЛИ
ЭСН ВЛИ-0,4кВ - Чертежи.РУ
Реконструкция ВЛ-0,4 кВ с. Липяги - Чертежи, 3D...
Установка заземления на вли 0 4кв - 82 фото
ВЛ -10 кВ и ВЛИ-0.4 кВ. Опросный лист КМТП2 160...
Рабочий проект реконструкции ВЛИ 0,4 кВ СИП-2А ...
Проект ВЛИ-0, 4 кВ | Скачать чертежи, схемы, ри...
РУ-0,4 кВ - Альтер Электрик
Проект внешнего электроснабжения ВЛИ-0,4 кВ - Ч...
ВВП Британии в 4кв, по предварительным данным, ...
Ответвление ВЛИ-0,4кВ от ВЛ-0,4кВ. Установка щи...
Скачать Проект Вли 0 4Кв - imresurs
УЗ ВЛИ 0,38 кВ, цена в Гомеле - Купить устройст...
Расчёт электрической сети 0,4 кВ - презентация ...
Переход от ВЛ-0,4кВ на ВЛИ-0,4кВ - Чертежи, 3D ...
ВЛЗ 10кВ и ВЛИ 0.4кВ по одним опорам - YouTube
Монтаж воздушных и кабельных линий 0,4 – 10 кВ ...
⚡️Техническое обслуживание и ремонт ВЛИ 0,4 кВ ...